詳細情報

物件 No.S1472

checkpoint
門真の住宅街!

デイサービス跡の1階店舗。

11月末まで営業予定!
※引渡しは2026年1月以降。

業種相談可能ですので
そのままデイサービスで
営業されるのが最適です!
S1472-1
S1472-2
S1472-3
S1472-4
S1472-5
■所在地
 門真市岸和田2
■最寄り駅
 京阪本線 萱島駅 徒歩約35分
■賃料(税込)
 480,000円
■共益費
 -
■保証金(税込)
 1,300,000円
■敷引き(税込)
 -円
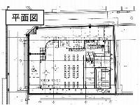
■面積
 約97坪
■所在階
 1階
■前(現)業種
 デイサービス
■現状
 賃貸中
■オススメ業種
 デイサービス
この物件 NO.S1472 を
お問い合わせメールを送信
電話番号表示
営業時間:
10:00〜19:00 日曜・祝日定休
一つ前のページへ
topページヘ
ベンチャースペースラボ